Πώς θα γίνει η Αμφίπολη για τους επισκέπτες το 2023

Πώς θα γίνει η Αμφίπολη για τους επισκέπτες το 2023

Η πρόσφατη απόφαση του Κεντρικού Αρχαιολογικού Συμβουλίου για την ανάδειξη του Τύμβου Καστά δεν βάζει τέλος μόνο στα σχεδόν 4,5 χρόνια απραξίας που προηγήθηκαν, αλλά πετάει οριστικά στον κάλαθο των αχρήστων το περιβόητο «ρωμαϊκό πόρισμα» του 2015

Απαγορεύεται από το δίκαιο της Πνευμ. Ιδιοκτησίας η καθ΄οιονδήποτε τρόπο παράνομη χρήση/ιδιοποίηση του παρόντος, με βαρύτατες αστικές και ποινικές κυρώσεις για τον παραβάτη
Πώς θα γίνει η Αμφίπολη για τους επισκέπτες το 2023
H ομόφωνη έγκριση της μελέτης στερέωσης, αποκατάστασης και ανάδειξης του μνημείου, που φέρει την υπογραφή του Κεντρικού Αρχαιολογικού Συμβουλίου (ΚΑΣ), σηματοδοτεί τη βούληση του υπουργείου Πολιτισμού να προχωρήσουν με ταχύτατους ρυθμούς οι αναγκαίες εργασίες που θα αντιμετωπίσουν τις σημερινές παθογένειες και ταυτόχρονα θα οδηγήσουν στην ανάδειξή του, καθιστώντας το επισκέψιμο για το κοινό έως το 2023.

«Σήμερα κάνουμε πράγματα που έπρεπε να γίνουν από το 2015. Βρισκόμαστε δυστυχώς 4,5 χρόνια πίσω. Εχουμε επιδοθεί σ’ έναν αγώνα δρόμου ώστε να ανακτήσουμε τον χαμένο χρόνο και πλέον έχουμε κάθε λόγο να αισιοδοξούμε», λέει στο «ΘΕΜΑ» η υπουργός Πολιτισμού Λίνα Μενδώνη, επισημαίνοντας ότι η Αμφίπολη αποτελεί προτεραιότητα της κυβέρνησης. «Ο πρωθυπουργός Κυριάκος Μητσοτάκης έχει βάλει στις προτεραιότητες της κυβέρνησης την Αμφίπολη και την ανάδειξή της μέσω ευρύτερων πολιτιστικών διαδρομών στη Βόρεια Ελλάδα. Η εντατικοποίηση της αρχαιολογικής έρευνας στην Αμφίπολη και η ανάδειξή της ως κορυφαίου αρχαιολογικού χώρου μπορεί να λειτουργήσει ως αναπτυξιακός πόρος για την ευρύτερη περιοχή, δημιουργώντας σοβαρές προϋποθέσεις βιώσιμης ανάπτυξής», τονίζει η υπουργός Πολιτισμού.


Πώς θα γίνει η Αμφίπολη για τους επισκέπτες το 2023



Η απόφαση του ΚΑΣ, που ουσιαστικά πρώτη φορά ασχολείται σοβαρά με το θέμα ανάδειξης και αξιοποίησης του Τύμβου Καστά της Αμφίπολης, βάζει τέλος και στις «περίεργες» θεωρίες περί «ρωμαϊκής» χρονολόγησης του έργου, που επιχειρήθηκε εντέχνως λόγω των εμμονών των κυβερνήσεων ΣΥΡΙΖΑ μέσω του περιβόητου αυθαίρετου πορίσματος της πρώην γενικής γραμματέως του υπουργείου Πολιτισμού Μαρίας Ανδρεαδάκη-Βλαζάκη. Στη διάρκεια συνεδρίασης του ΚΑΣ ο αρχιτέκτονας της Διεύθυνσης Αναστήλωσης Αρχαίων Μνημείων του υπουργείου Πολιτισμού, δρ Μιχάλης Λεφαντζής, παρουσίασε νέα στοιχεία για τις οικοδομικές φάσεις και την ταυτότητα του μνημείου, όπως προέκυψαν από την ενδελεχή μελέτη των ευρημάτων. Παράλληλα ο πολιτικός μηχανικός Δημήτρης Εγγλέζος αναφέρθηκε στη δομική παθολογία του έργου.

«Ο Τύμβος Καστά είναι ένα ιδιαίτερο μνημειακό σύνολο και διαθέτει τα χαρακτηριστικά ενός αρχιτεκτονικού υβριδίου του οποίου τα συγκριτικά παραδείγματα είναι ελάχιστα και τα περισσότερα όχι επαρκώς διερευνημένα. Πρόκειται για ένα μακεδονικό δημόσιο έργο στο οποίο υπεισέρχεται η βιωμένη εμπειρία της Ανατολής, ενός στρατιωτικού ταφικού ηρώου - ιερού του οποίου ο εσωτερικός χώρος μετά από 24 αιώνες φαντάζει ακόμη εν λειτουργία», λέει από την πλευρά του ο αρχιτέκτονας Μιχάλης Λεφαντζής.



Πώς θα γίνει η Αμφίπολη για τους επισκέπτες το 2023


Επισκέψιμο το 2023

Κλείσιμο
Στις αρχές του 2023, το αργότερο, θα ανοίξει τις πύλες του για το κοινό, το επιβλητικό ταφικό μνημείο του Τύμβου Καστά στην Αμφίπολη. Οι επισκέπτες θα προσεγγίζουν το μνημείο με μια μεταλλική πεζογέφυρα που θα οδηγεί στο σύγχρονο προστώο, ένα προστατευτικό κέλυφος που θα σκεπάζει τη μαρμάρινη κλίμακα που οδηγεί στο εσωτερικό και μέσα από μια κυκλική διαδρομή θα φτάνουν ως την είσοδο του τρίτου θαλάμου με τις επιβλητικές Καρυάτιδες. Η πρόσβαση στους υπόλοιπους δύο θαλάμους θα επιτρέπεται μόνο σε επιστήμονες και εξειδικευμένες ομάδες, αλλά το εσωτερικό τους, όπως και το επιβλητικό ψηφιδωτό με την αρπαγή της Περσεφόνης, θα είναι ορατό στους επισκέπτες. Για λόγους ασφαλείας, σταθερής θερμοκρασίας και υγρασίας, η επίσκεψη και η ξενάγηση στο εσωτερικό του μνημείου θα επιτρέπονται ανά ομάδες οκτώ ατόμων, ενώ υπάρχει μέριμνα και για ΑμεΑ. Στον εξωτερικό περιβάλλοντα χώρο, η διαδρομή θα οδηγεί στην κορυφή του τύμβου, όπου υπάρχει το σήμα, μια βάση του Λέοντα της Αμφίπολης, αλλά και το νεκροταφείο της Εποχής του Σιδήρου που προϋπήρχε της κατασκευής του τύμβου πριν από 2.400 χρόνια.

Η αποκατάσταση του περιβόλου

Στο πλαίσιο των μελετών που εγκρίθηκαν από το ΚΑΣ προβλέπονται νέες χωματουργικές εργασίες στα πρανή, με στόχο να αποκτήσει ο τύμβος τη γεωμετρική μορφή που είχε κατά την αρχαιότητα, με συγκεκριμένες κλίσεις που δεν θα επιτρέπουν την ολίσθηση του εδάφους και ύψος 23 μ., αλλά και να προστατευτεί το ταφικό σήμα στην κορυφή. Παράλληλα θα ολοκληρωθεί και η γεωτεχνική στήριξη του μνημείου στα πρανή του τύμβου, το οποίο καλύπτει συνολική έκταση 22 στρεμμάτων. Αρχές του επόμενου Ιουνίου αναμένεται να ξεκινήσουν οι εργασίες αποκατάστασης τμήματος του περιβόλου στη νότια πλευρά με υλικό που συγκεντρώθηκε τα προηγούμενα χρόνια από την περιοχή της Αμφίπολης αλλά και της Κερκίνης. Πρόκειται για 370 μαρμάρινα μέλη (ορθοστάτες, στέψεις και γείσα), που από το 2012 ταυτίστηκαν και αποδόθηκαν στον αποψιλωμένο θώρακα του περιβόλου, επιπλέον 160 μέλη υπάρχουν εντοιχισμένα στη σημερινή βάση του Λέοντα της Αμφίπολης.



Πώς θα γίνει η Αμφίπολη για τους επισκέπτες το 2023
Η ανατολική μηκοτομή του ταφικού μνημείου. Οι επισκέπτες θα μπορούν να επισκέπτονται μέχρι το σημείο στο οποίο βρίσκονται οι Καρυάτιδες


Η αναστήλωση

Μετά την απομάκρυνση των δοκαριών υποστύλωσης και αντιστήριξης, που τοποθετήθηκαν στο εσωτερικό του μνημείου την περίοδο των ανασκαφών, μπορούν να ξεκινήσουν με ασφάλεια οι εργασίες αποκατάστασης και αναστήλωσης του μνημείου. Τα νέα -λιγότερα- υποστυλώματα που υπάρχουν σήμερα στο εσωτερικό βοηθούν το ειδικό έργο της δομικής αποκατάστασης στους πλευρικούς τοίχους, που έχουν παραμορφωθεί σε πολλά σημεία, στους διαφραγματικούς τοίχους ανάμεσα στους θαλάμους, στα επιστύλια, στην καμάρα, του δαπέδου κ.λπ. Εξειδικευμένες μελέτες και λεπτοί χειρισμοί επιβάλλονται για τη συντήρηση και αποκατάσταση των Καρυατίδων που αποτελούν ουσιαστικά δομικά στοιχεία του μνημείου. Τα εντυπωσιακά αγάλματα φέρουν πάνω τους όλο το φορτίο του επιστυλίου που έχει σπάσει στη μέση, όπως και του τυμπάνου της καμάρας. Πιθανή μικρομετακίνηση του επιστυλίου και των γλυπτών θα επιφέρει αστοχία σε ολόκληρη την καμάρα, με κίνδυνο ακόμη και την κατάρρευση του μνημείου. Η δομική αποκατάσταση και αναστήλωση του μνημείου θα έπρεπε ήδη να είχαν ολοκληρωθεί και σήμερα να βρίσκονταν σε εξέλιξη οι εργασίες συντήρησης τοιχογραφιών, λίθινων διακοσμητικά, γλυπτικού διακόσμου δάπεδο κ.ά.


Πώς θα γίνει η Αμφίπολη για τους επισκέπτες το 2023
Ο δημοσιογράφος του «ΘΕΜΑτος» Παναγιώτης Σαββίδης με τον αρχιτέκτονα Μιχάλη Λεφαντζή ανάμεσα στα λίθινα μέλη που κάποτε ανήκαν στον Τύμβο


Σφίγγες, Καρυάτιδες και μαρμάρινη θύρα

Τα τμήματα θραυσμάτων από τα τέσσερα φτερά των Σφιγγών και ένα μέρος από τον λαιμό της δεύτερης Σφίγγας, που βρέθηκαν κατά τις ανασκαφές, έχουν αποτυπωθεί και ταυτιστεί και θα αποκατασταθούν -συμπληρώνοντας νέο υλικό- ώστε να αποκτήσουν την αρχική τους εικόνα που θα εντυπωσιάζει τον επισκέπτη του μνημείου. Επίσης θα αποκατασταθεί η κεφαλή στη μία Σφίγγα, καθώς και το χέρι από τη δυτική Καρυάτιδα. Την αρχική της μορφή θα πάρει και η μαρμάρινη θύρα του ταφικού θαλάμου που θα αποκατασταθεί πλήρως και θα εκτεθεί στο νέο προστώο, που θα κατασκευαστεί επάνω από τη μαρμάρινη κλίμακα που οδηγεί στο εσωτερικό του μνημείου. Θα πρόκειται ουσιαστικά για ένα προστατευτικό κέλυφος, στις διαστάσεις του αρχαίου που προϋπήρχε, το οποίο θα είναι μοντέρνο και αφαιρετικό και διακριτικό σε επίπεδο αρχιτεκτονικής. Παράλληλα θα εξασφαλίζει σταθερές συνθήκες θερμοκρασίας και υγρασίας μέσα στο μνημείο, καθώς και την ομαλή πρόσβαση των επισκεπτών.

Η οδύσσεια του περιβόλου και η παρέμβαση Μενδώνη

Μέσα σε λιγότερο από δύο εβδομάδες μεταφέρθηκαν πλησίον του Τύμβου Καστά 370 αρχιτεκτονικά μέλη του περιβόλου, που εντοπίστηκαν τα προηγούμενα χρόνια πλησίον του Λέοντα της Αμφίπολης και στη λίμνη Κερκίνη, δίπλα στο χωριό Λιθότοπος Σερρών.

Η διαδικασία αυτή θα έπρεπε να είχε ολοκληρωθεί πριν από έναν χρόνο, στο πλαίσιο του έργου αποκατάστασης και ανάδειξης του μνημείου, μέσω του ΕΣΠΑ Κεντρικής Μακεδονίας, με προϋπολογισμό 1,5 εκατ. ευρώ, όπου εντάχθηκε από τα τέλη του 2017.

Συγκεκριμένα το ΕΣΠΑ προέβλεπε: «Στερέωση, αποκατάσταση και αναστήλωση του ταφικού μνημείου και αναστήλωση τμήματος του περιβόλου με χρήση του αυθεντικού μαρμάρινου υλικού του». Ωστόσο, η διαδικασία αυτή δεν προχώρησε, με διάφορές δικαιολογίες και πολλά εμπόδια, εξαιτίας των εμμονών της προηγούμενης ηγεσίας του υπουργείου Πολιτισμού, να αποτρέψει σύνδεση των διάσπαρτων μαρμάρινων μελών με τον περίβολο και το ταφικό μνημείο, εμμένοντας σε θεωρίες χρονολόγησής του στη ρωμαϊκή εποχή, με βάση όσα υπάρχουν καταχωρημένα στην επίσημη βιβλιογραφία και κυρίως όσα διατύπωσε το 1940 ο αείμνηστος αρχαιολόγος Γιώργος Μπακαλάκης (1908-1991), μελετώντας τα μυστηριώδη «χαράγματα» στα διάσπαρτα μαρμάρινα μέλη. Ο Μπακαλάκης υποστήριξε πως οι μαρμάρινοι δόμοι και τα γείσα προέρχονται από κατεδαφισμένα κτίρια της ελληνιστικής εποχής, τα οποία χρησιμοποιήθηκαν από τους Ρωμαίους για την κατασκευή του φράγματος και όχι από τον ταφικό περίβολο.


Πώς θα γίνει η Αμφίπολη για τους επισκέπτες το 2023
Η πρόταση αποκατάστασης της Ανατολικής Σφίγγας



«Μελετήσαμε τα διάσπαρτα μαρμάρινα μέλη σε σχέση με τα αντίστοιχα του περιβόλου. Υπήρξαν συγκριτικά στοιχεία που λάβαμε υπόψη μας καταλήγοντας στο συμπέρασμα ότι προέρχονται από τον περίβολο. Αν δεν υπήρχε η ανακάλυψη του περιβόλου, ουδείς θα ασχολούνταν με τα διάσπαρτα αυτά μέλη που για δεκαετίες ολόκληρες ήταν -κυριολεκτικά- στα αζήτητα», λέει ο κ. Λεφαντζής, επισημαίνοντας σχετικά με τη χρονολόγησή τους: «Τα μέλη ανήκουν στον περίβολο και ουδείς πλέον μπορεί να το αμφισβητήσει. Η οικοδομική ανάλυση του κυκλικού αναλημματικού τοίχου επέδωσε στοιχεία όπως οι πελέκινοι (σύνδεσμοι χελιδονοουράς) στο “έμπλεκτον” σύστημα κατασκευής του, που τον χρονολογούν, το αργότερο, στους πρώιμους ελληνιστικούς χρόνους, δηλαδή τα τελευταία 30-35 χρόνια του 4ου αιώνα π.Χ».

Να σημειωθεί ότι αν τηρούνταν τα χρονοδιαγράμματα, θα είχε ολοκληρωθεί εγκαίρως η μελέτη αναστήλωσης του περιβόλου, βάσει συνδέσμου και γομφών κάθε μαρμάρινου μέλους ξεχωριστά.

Οταν αρχές Δεκεμβρίου βρέθηκε στην Αμφίπολη η υπουργός Πολιτισμού Λίνα Μενδώνη και διαπίστωσε πως τα μαρμάρινα μέλη βρίσκονται ακόμη εκτός Καστά, ζήτησε σε αυστηρό τόνο από τις υπηρεσίες να επισπευστούν άμεσα οι ενέργειες για τη μεταφορά τους, όπως και τελικά έγινε, ζητώντας παράλληλα αυστηρή τήρηση των χρονοδιαγραμμάτων.

Σήμερα τα μαρμάρινα μέλη είναι αρθρωμένα στα δυτικά του τύμβου κατά στρώση, ξεκινώντας από τη βάση, τον ορθοστάτη, τον καταληπτήρα, τον ανώτερο ορθοστάτη και το γείσο, έχοντας ουσιαστικά την αρχική τους δομή. Οπως λέει ο κ. Λεφαντζής: «Ουσιαστικά τα κομμάτια είναι στοιχισμένα κατά δόμο, κατά στρώση στον ίδιο τον τοίχο ώστε να γίνει η μελέτη, η απόδοση, η ταύτιση των κομματιών αυτών στον περίβολο και να ξεκινήσει στη συνέχεια η αναστήλωσή του».

Υπολογίζεται ότι με τα 370 αρχιτεκτονικά μέλη θα αναστηλωθούν πλήρως τουλάχιστον 100 μ. στη νότια πλευρά του περιβόλου, αφού προηγηθεί αναγνώριση της αρχικής θέσης του καθενός, η οποία ήδη έχει ξεκινήσει.



Πώς θα γίνει η Αμφίπολη για τους επισκέπτες το 2023
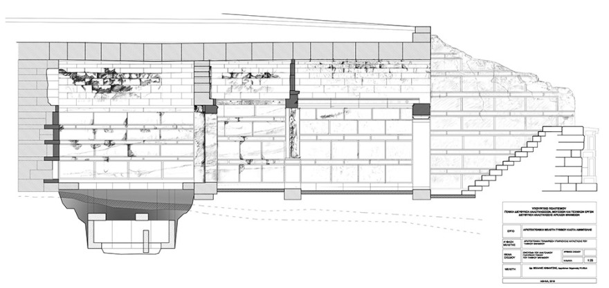
Τομές της μόρφωσης του Τύμβου και η τοπογραφική-αρχιτεκτονική πρόταση
Ακολουθήστε το protothema.gr στο Google News και μάθετε πρώτοι όλες τις ειδήσεις

Δείτε όλες τις τελευταίες Ειδήσεις από την Ελλάδα και τον Κόσμο, τη στιγμή που συμβαίνουν, στο Protothema.gr

ΡΟΗ ΕΙΔΗΣΕΩΝ

Ειδήσεις Δημοφιλή Σχολιασμένα
δειτε ολες τις ειδησεις

ΤΑ ΠΙΟ ΔΗΜΟΦΙΛΗ

Best of Network

Δείτε Επίσης