ΓΕΝ: Προμήθεια 800 οικίσκων για μετανάστες και πρόσφυγες ύψους €10 εκατ.

ΓΕΝ: Προμήθεια 800 οικίσκων για μετανάστες και πρόσφυγες ύψους €10 εκατ.

Με χθεσινή απόφαση του υπαρχηγού ΓΕΝ, υποναύαρχου Γεωργίου Καμπουράκη ανακηρύχτηκε προσωρινός ανάδοχος του έργου

ΓΕΝ: Προμήθεια 800 οικίσκων για μετανάστες και πρόσφυγες ύψους €10 εκατ.
Ολοκληρώνεται η προμήθεια 800 οικίσκων από το Γενικό Επιτελείο Ναυτικού, έναντι του ποσού των 10 εκατ ευρώ, που προορίζονται για “αποθήκευση και μελλοντική χρήση σε δομές φιλοξενίας προσφύγων/μεταναστών”.

Με χθεσινή απόφαση του υπαρχηγού ΓΕΝ υποναύαρχου Γεωργίου Καμπουράκη ανακηρύχτηκε προσωρινός ανάδοχος του έργου και η μεγάλη αυτή προμήθεια για την αντιμετώπιση του μεταναστευτικού-προσφυγικού ζητήματος από το υπουργείο Προστασίας του Πολίτη εισέρχεται στην τελική της φάση.

Ειδικότερα, μετά την αποδοχή του φακέλου δικαιολογητικών συμμετοχής και τεχνικής προσφοράς της και την απόρριψη των προσφορών των υπόλοιπων 7 εταιρειών, που συμμετείχαν στην διαγωνιστική διαδικασία, προσωρινός ανάδοχος του έργου αναδείχτηκε η ένωση εταιρειών “ΕΥΡΩΕΜΠΟΡΙΚΗ Α.Ε.-SHELTER Α.Β.Ε.Ε.”. Η οικονομική προσφορά της συγκεκριμένης ένωσης εταιρειών ανέρχεται στο ποσό των 8.068.820,00 ευρώ χωρίς ΦΠΑ ή αλλιώς 10.005.336,80 ευρώ με ΦΠΑ.

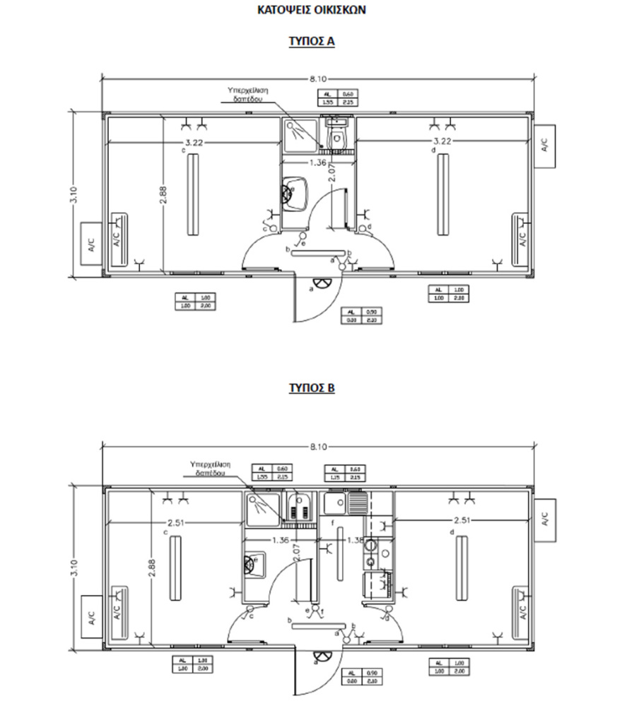
Η προμήθεια αφορά σε δύο τύπους οικίσκων (container) των 25τ.μ., που πρόκειται να αποθηκευτούν σε στρατόπεδα σε Αθήνα, Θεσσαλονίκη και Λάρισα, με τις τεχνικές προδιαγραφές τους να έχουν καθοριστεί στη διακήρυξη του διαγωνισμού, που δημοσιεύτηκε τον Ιανουάριο του 2019. Ο οικίσκος διοίκησης τύπου Α διαθέτει δύο χώρους διοικητικής χρήσης ίσου εμβαδού και ένα w.c και ο οικίσκος διαμονής τύπου Β δύο κοιτώνες, έναν χώρο κουζίνας και ένα w.c.

ΓΕΝ: Προμήθεια 800 οικίσκων για μετανάστες και πρόσφυγες ύψους €10 εκατ.


Στο πλαίσιο αυτό, 280 οικίσκοι (260 τύπου Α και 20 τύπου Β) θα αποθηκευτούν στο στρατόπεδο Λεβαντή στη Σίνδο Θεσσαλονίκης, έδρα του 723 Τάγματος Μηχανικού. Στο στρατόπεδο Μπουγά στη Λάρισα, που εδρεύει η 32η Μοίρα Πεδινού Πυροβολικού Πεζοναυτών, θα αποθηκευτούν 200 οικίσκοι(180 τύπου Α και 20 τύπου Β) και στο στρατόπεδο Τζήμα στην ίδια πόλη 100 οικίσκοι τύπου Β. Στο στρατόπεδο Καποτά στο Μενίδι θα μεταφερθούν 220 οικίσκοι(200 τύπου Α και 20 τύπου Β).

Σύμφωνα με τα οριζόμενα, οι υπό προμήθεια οικίσκοι για τη στέγαση μεταναστών και προσφύγων σε δομές φιλοξενίας θα πρέπει να είναι καινούργιοι πρόσφατης κατασκευής τελευταίων 12 μηνών και θα παραδοθούν εντός 40 ημερολογιακών ημερών από την υπογραφή της σύμβασης. “Οι οικίσκοι θα είναι καινούργιοι (όχι μεταχειρισμένοι) και θα παραδοθούν έτοιμοι για χρήση με ολοκληρωμένα τα Η/Μ δίκτυα (Αποχέτευση-Υδρευση-Ηλεκτρολογικά) μέχρι το περίγραμμά τους, με αναμονές έτοιμες για τη σύνδεση με τα αντίστοιχα δίκτυα (εργασίες τρίτων). Οι οικίσκοι θα έχουν απλή μορφή, θα είναι μονώροφοι, με δυνατότητα στοίβασης σε διώροφη διάταξη και ενιαία μεταφερόμενοι σε επικαθήμενα τροχοφόρα οχήματα”.

Κλείσιμο
ΓΕΝ: Προμήθεια 800 οικίσκων για μετανάστες και πρόσφυγες ύψους €10 εκατ.


Οι οικίσκοι θα έχουν 2 δίφυλλα ανοιγόμενα παράθυρα(ένα για κάθε δωμάτιο) και 1 επάλληλο παράθυρο μπάνιου, 1 πόρτα εισόδου και 3 εσωτερικές ενώ στα κοντέινερ τύπου Β θα υπάρχει επάλληλο παράθυρο στον χώρο της κουζίνας και όλα τα παράθυρα θα έχουν σταθερή σίτα. Στην κουζίνα θα υπάρχει νεροχύτης και ντουλάπια δαπέδου και κρεμαστά ενώ θα υπάρχει πρόνοια για εγκατάσταση ψυγείου και ηλεκτρικής κουζίνας. Οσον αφορά στο λουτρό, “θα τοποθετηθούν λευκά είδη υγιεινής αρίστης ποιότητας”. Στους οικίσκους διοίκησης “λεκάνη δαπέδου χαμηλής πιέσεως, ευρωπαϊκού τύπου από πορσελάνη” και στους οικίσκους διαμονής “λεκάνη από πορσελάνη ανατολικού/ασιατικού τύπου α' ποιότητας”.


ΓΕΝ: Προμήθεια 800 οικίσκων για μετανάστες και πρόσφυγες ύψους €10 εκατ.
ΓΕΝ: Προμήθεια 800 οικίσκων για μετανάστες και πρόσφυγες ύψους €10 εκατ.
ΓΕΝ: Προμήθεια 800 οικίσκων για μετανάστες και πρόσφυγες ύψους €10 εκατ.
ΓΕΝ: Προμήθεια 800 οικίσκων για μετανάστες και πρόσφυγες ύψους €10 εκατ.
ΓΕΝ: Προμήθεια 800 οικίσκων για μετανάστες και πρόσφυγες ύψους €10 εκατ.
Ακολουθήστε το protothema.gr στο Google News και μάθετε πρώτοι όλες τις ειδήσεις

Δείτε όλες τις τελευταίες Ειδήσεις από την Ελλάδα και τον Κόσμο, τη στιγμή που συμβαίνουν, στο Protothema.gr

ΡΟΗ ΕΙΔΗΣΕΩΝ

Ειδήσεις Δημοφιλή Σχολιασμένα
δειτε ολες τις ειδησεις

ΤΑ ΠΙΟ ΔΗΜΟΦΙΛΗ

Best of Network

Δείτε Επίσης