Πετρέλαιο θέρμανσης - φυσικό αέριο: Πώς θα αντικαταστήσετε τα συστήματα θέρμανσης

Πετρέλαιο θέρμανσης - φυσικό αέριο: Πώς θα αντικαταστήσετε τα συστήματα θέρμανσης

Τι πρέπει να κάνουν όσοι θέλουν να αντικαταστήσουν τα συστήματα θέρμανσης πετρελαίου με φυσικό αέριο στην Αττική

Πετρέλαιο θέρμανσης - φυσικό αέριο: Πώς θα αντικαταστήσετε τα συστήματα θέρμανσης
Πληροφορίες και διευκρινίσεις για το πρόγραμμα επιχορήγησης, μέσω ΕΣΠΑ, για την αντικατάσταση των συστημάτων θέρμανσης πετρελαίου με συστήματα φυσικού αερίου σε κατοικίες της Περιφέρειας Αττικής δίνει η Εταιρεία Διανομής Αερίου Αττικής που έχει αναλάβει την υλοποίηση της δράσης.

Πρόκειται για πρόγραμμα συνολικού προϋπολογισμού 4,7 εκατομμύρια ευρώ, από το οποίο θα ωφεληθούν ιδιοκτήτες κύριας κατοικίας που πληρούν συγκεκριμένα εισοδηματικά κριτήρια σε 22 δήμους της Αττικής, στους οποίους η διείσδυση του φυσικού αερίου είναι περιορισμένη.

Διαβάστε αναλυτικά ΕΔΩ

Ο υπουργός Περιβάλλοντος και Ενέργειας Κωστής Χατζηδάκης υπογράμμισε ότι:

«Η δράση του υπουργείου μας -που χρηματοδοτείται από το τρέχον ΕΣΠΑ- στοχεύει αφενός στη μείωση της εκπομπής ρύπων μέσω της βελτίωσης της ενεργειακής απόδοσης των συστημάτων θέρμανσης των νοικοκυριών και της χρήσης πιο φιλικού περιβαλλοντικά καυσίμου,αφετέρου συμβάλλει στην καταπολέμηση της ενεργειακής φτώχειας. Είναι μια πολύ χρήσιμη και πολλαπλά ωφέλιμη πρωτοβουλία. Ήδη βρίσκεται στην τελική ευθεία η προκήρυξη ανάλογης δράσης για την Περιφέρεια Θεσσαλίας και εξετάζεται και το ενδεχόμενο επέκτασής της και σε άλλες περιοχές, σε συνάρτηση με τον σχεδιασμό για την ανάπτυξη των δικτύων φυσικού αερίου».


Ο Εκτελεστικός Πρόεδρος του Δ.Σ. της ΕΔΑ Αττικής, Πιέρρος Χατζηγιάννης σημείωσε ότι «η συμμετοχή της ΕΔΑ Αττικής ως φορέα υλοποίησης της συγκεκριμένης δράσης αποτελεί έμπρακτη απόδειξη της δέσμευσης της εταιρείας να πρωταγωνιστήσει στην ενίσχυση του ρόλου του φυσικού αερίου ως καύσιμο - γέφυρα στη ενεργειακή μετάβαση της χώρας μας».

Ο ανώτατος συνολικός επιλέξιμος προϋπολογισμός ανά κατοικία, διαμορφώνεται ανάλογα με την κατηγορία εγκατεστημένης ισχύος του νέου συστήματος θέρμανσης και δύναται να κυμανθεί από το ποσό των 4.000 ευρώ έως τις 21.500 ευρώ.


Το ποσοστό επιχορήγησης ανέρχεται σε 65% για ωφελούμενους με ατομικό εισόδημα επιβολής εισφοράς αλληλεγγύης έως 20.000 και οικογενειακό έως 30.000 ευρώ, ενώ στο 100% φτάνει η επιχορήγηση για τους δικαιούχους κοινωνικού εισοδήματος αλληλεγγύης.

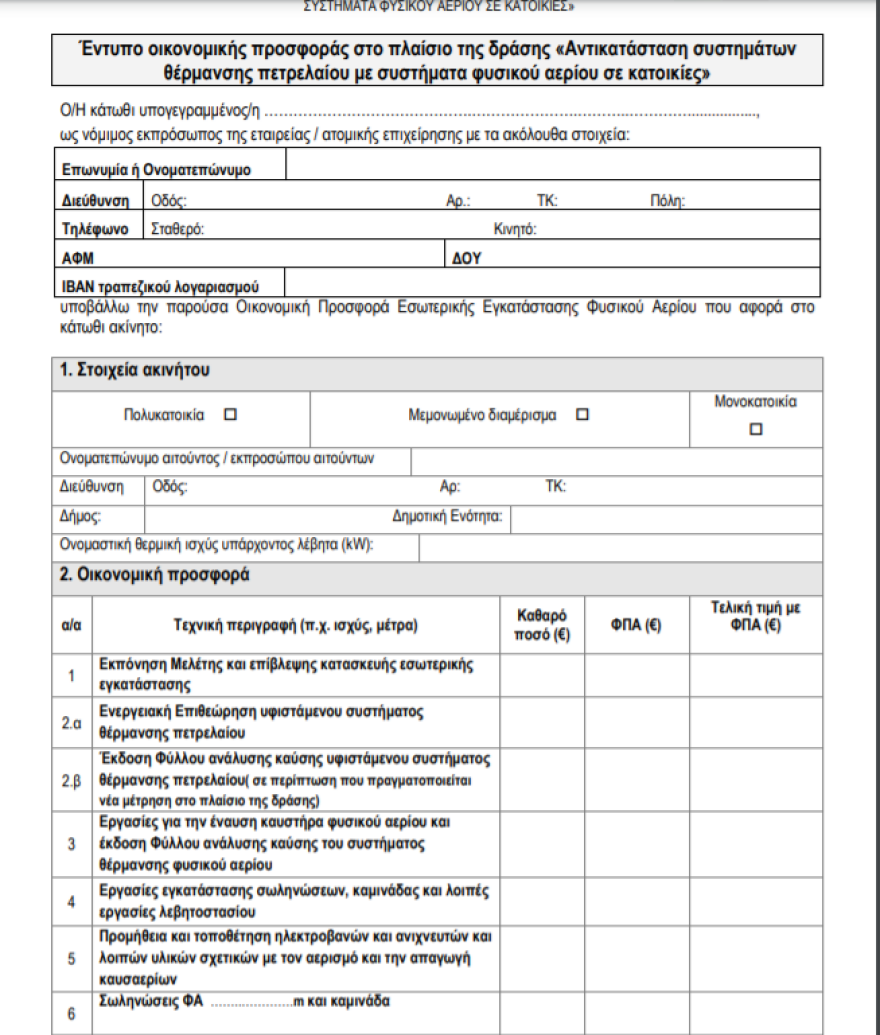
Δείτε την αίτηση
Πετρέλαιο θέρμανσης - φυσικό αέριο: Πώς θα αντικαταστήσετε τα συστήματα θέρμανσης
Κλείσιμο



Δικαίωμα συμμετοχής στη δράση έχουν φυσικά πρόσωπα, τα οποία θα πρέπει να πληρούν σωρευτικά τα εξής κριτήρια:

-1. Να έχουν δικαίωμα κυριότητας (πλήρους ή ψιλής) ή επικαρπίας σε επιλέξιμη κατοικία.

-2. Να μην έχουν συνάψει (τα ίδια ή συγκύριοι) σύμβαση σύνδεσης φυσικού αερίου με την ΕΔΑ Αττικής, για την κατοικία που αιτούνται επιχορήγηση, μέχρι τις 08 Οκτωβρίου 2020 (δηλαδή να μην υπάρχει σε ισχύ σύμβαση σύνδεσης στις 07/10/2020). 3. Να πληρούν τα προαναφερθέντα εισοδηματικά κριτήρια.

Για την ενημέρωση των δυνητικών ωφελούμενων από τη δράση, η ΕΔΑ Αττικής έχει δημιουργήσει έναν διαδικτυακό κόμβο που περιέχει όλες τις απαραίτητες πληροφορίες.


Πιο συγκεκριμένα, στο site της Εταιρείας (https://www.edaattikis.gr/gr/ house/cost-offers/financing- espa) οι δικαιούχοι μπορούν να λάβουν αναλυτική πληροφόρηση και καθοδήγηση σχετικά με τη διαδικασία υποβολής αιτήσεων, να αναζητήσουν λεπτομέρειες αναφορικά με τα χαρακτηριστικά που καθιστούν επιλέξιμη μια κατοικία, τους Δήμους που αφορά η δράση, να αποκτήσουν πρόσβαση σε όλα τα απαραίτητα έντυπα δικαιολογητικών, και να ενημερωθούν αναλυτικά για όλα τα στάδια της διαδικασίας της δράσης και τον τρόπο καταβολής της επιχορήγησης.
Πετρέλαιο θέρμανσης - φυσικό αέριο: Πώς θα αντικαταστήσετε τα συστήματα θέρμανσης



Επιπλέον, η Εταιρεία προσφέρει εξατομικευμένες διευκρινίσεις μέσω του email Info_Epixorigisi@edaattikis.gr στους ενδιαφερόμενους που σκοπεύουν να ωφεληθούν από τη δράση. Η προθεσμία υποβολής αιτήσεων λήγει στις 28 Μαΐου 2021. Για περισσότερες πληροφορίες μπορείτε να απευθυνθείτε και στα τηλέφωνα επικοινωνίας 213-0882000 και 11322.

Ειδήσεις σήμερα:
 
Εκλογές ΗΠΑ 2020: Κλιμακώνει τη ρητορική του ο Τραμπ, προειδοποιεί για «βία στους δρόμους»
 
Κορωνοϊός: Τι αλλάζει από σήμερα στην Αττική - Πόσο κοντά είναι το πλήρες lockdown

Άνοιξε το επίσημο τέμενος στην Αθήνα - Ποιος είναι ο πρώτος ιμάμης
Ακολουθήστε το protothema.gr στο Google News και μάθετε πρώτοι όλες τις ειδήσεις

Δείτε όλες τις τελευταίες Ειδήσεις από την Ελλάδα και τον Κόσμο, τη στιγμή που συμβαίνουν, στο Protothema.gr

ΡΟΗ ΕΙΔΗΣΕΩΝ

Ειδήσεις Δημοφιλή Σχολιασμένα
δειτε ολες τις ειδησεις

ΤΑ ΠΙΟ ΔΗΜΟΦΙΛΗ

Best of Network

Δείτε Επίσης