Το σπίτι που αγόρασε ο Στέφανος Κασσελάκης ανήκε στον πρώην υφυπουργό Γιάννη Βαληνάκη

Το σπίτι που αγόρασε ο Στέφανος Κασσελάκης ανήκε στον πρώην υφυπουργό Γιάννη Βαληνάκη

Το διαμέρισμα που αγοράζει ο πρόεδρος του ΣΥΡΙΖΑ ανήκε έως το 2021 στον πρώην υφυπουργό Γιάννη Βαληνάκη. Εκείνος το πούλησε σε εταιρεία εκμετάλλευσης ακινήτων που το ανακαίνισε και το ξανάβγαλε στην αγορά

Το σπίτι που αγόρασε ο Στέφανος Κασσελάκης ανήκε στον πρώην υφυπουργό Γιάννη Βαληνάκη
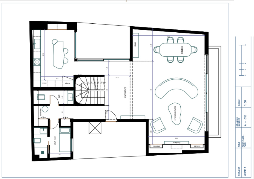
Πολιτικές συζητήσεις στο ευρύχωρο και φωτεινό σαλόνι στο διαμέρισμα του τρίτου ορόφου επί της οδού Λεβέντη 5, στο Κολωνάκι, δεν θα ακουστούν για πρώτη φορά όταν μέσα στο καλοκαίρι ο πρόεδρος του ΣΥΡΙΖΑ Στέφανος Κασσελάκης και ο σύζυγός του Τάιλερ Μπακμπέθ θα μπουν στο νέο τους σπίτι. Και ο προηγούμενος ιδιοκτήτης του διαμερίσματος – μεζονέτας ήταν πολιτικός, μέλος της κυβέρνησης του Κώστα Καραμανλή.

Πρόκειται για τον κ.Γιάννη Βαληνάκη, που είχε διατελέσει υφυπουργός Εξωτερικών και είναι αυτός που τον Απρίλιο του 2021 είχε πουλήσει το εντυπωσιακό διαμέρισμα των 246 τ.μ. στην εταιρεία  First Seat  έναντι 770.000 ευρώ, όπως αναφέρεται στο συμβόλαιο αγοραπωλησίας.

Τρία χρόνια μετά, το διαμέρισμα περνά στην ιδιοκτησία του Στέφανου Κασσελάκη, έναντι 1.7 εκατ. ευρώ, σύμφωνα με πληροφορίες που έχουν δει το φως της δημοσιότητας.



Το σπίτι που αγόρασε ο Στέφανος Κασσελάκης ανήκε στον πρώην υφυπουργό Γιάννη Βαληνάκη

Η πολυκατοικία επί της οδού Λεβέντη: Στον τρίτο και τέταρτο όροφο είναι το διαμέρισμα- μεζονέτα που αγοράζει ο Στέφανος Κασσελάκης



Το σπίτι που αγόρασε ο Στέφανος Κασσελάκης ανήκε στον πρώην υφυπουργό Γιάννη Βαληνάκη
Το σπίτι που αγόρασε ο Στέφανος Κασσελάκης ανήκε στον πρώην υφυπουργό Γιάννη Βαληνάκη
Το σπίτι που αγόρασε ο Στέφανος Κασσελάκης ανήκε στον πρώην υφυπουργό Γιάννη Βαληνάκη
Το σπίτι που αγόρασε ο Στέφανος Κασσελάκης ανήκε στον πρώην υφυπουργό Γιάννη Βαληνάκη






Το συμβόλαιο πώλησης του διαμερίσματος από τον κ.Βαληνάκη στην εταιρεία είχε επικυρωθεί σε συμβολαιογραφείο στη Βάρκιζα, στις 19/4/2021, παρουσία του πρώην υφυπουργού Εξωτερικών Γιάννη Βαληνάκη (την περίοδο των κυβερνήσεων Κ. Καραμανλή 2004-2009) και του προέδρου και διευθύνοντος συμβούλου της εταιρίας διαχείρισης ακινήτων First Seat, Γεώργιου Γιαννιώδη. Πωλητής και αγοραστής είχαν συμφωνήσει στο τίμημα των 770.000 ευρώ, όπως αναφέρεται στο συμβόλαιο.

Κλείσιμο
Το σπίτι που αγόρασε ο Στέφανος Κασσελάκης ανήκε στον πρώην υφυπουργό Γιάννη Βαληνάκη


Το σπίτι που αγόρασε ο Στέφανος Κασσελάκης ανήκε στον πρώην υφυπουργό Γιάννη Βαληνάκη
Το σπίτι που αγόρασε ο Στέφανος Κασσελάκης ανήκε στον πρώην υφυπουργό Γιάννη Βαληνάκη
Το σπίτι που αγόρασε ο Στέφανος Κασσελάκης ανήκε στον πρώην υφυπουργό Γιάννη Βαληνάκη
Το σπίτι που αγόρασε ο Στέφανος Κασσελάκης ανήκε στον πρώην υφυπουργό Γιάννη Βαληνάκη


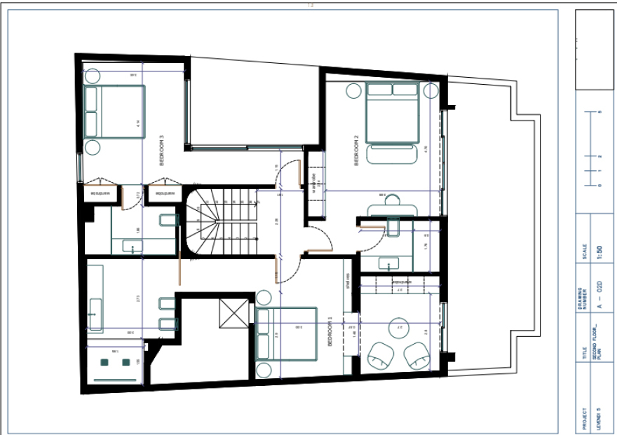
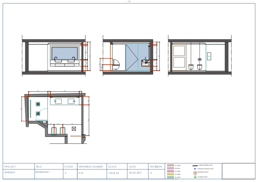
Σύμφωνα με την περιγραφή του ακινήτου, πρόκειται για δυο διαμερίσματα του Γ και Δ ορόφου τα οποία έχουν συνενωθεί και λειτουργικά και πλέον αποτελούν μια ενιαία, αυτοτελή οριζόντια ιδιοκτησία – μεζονέτα, η οποία έχει συνολική επιφάνεια 246,18 τμ, ενιαίο ποσοστό συνιδιοκτησίας εξ αδιαιρέτου επί του όλου οικοπέδου 300 χιλιοστά ( 300/1000).

Το διαμέρισμα του Γ’ ορόφου αποτελείται από ένα υπνοδωμάτιο, χωλλ, W.C, λουτρό, κουζίνα, δωμάτιο υπηρεσίας, σαλόνι, εσωτερική σκάλα που οδηγεί στον Δ όροφο, στον οποίο υπάρχουν δυο υπνοδωμάτια, κουζίνα, W.C, χωλλ, καθιστικό, λουτρό, σαλόνι και βεράντα.

Το σπίτι που αγόρασε ο Στέφανος Κασσελάκης ανήκε στον πρώην υφυπουργό Γιάννη Βαληνάκη
Το σπίτι που αγόρασε ο Στέφανος Κασσελάκης ανήκε στον πρώην υφυπουργό Γιάννη Βαληνάκη
Το σπίτι που αγόρασε ο Στέφανος Κασσελάκης ανήκε στον πρώην υφυπουργό Γιάννη Βαληνάκη
Το σπίτι που αγόρασε ο Στέφανος Κασσελάκης ανήκε στον πρώην υφυπουργό Γιάννη Βαληνάκη


Μετά την αγορά από τον κ. Βαληνάκη, η First Seat, που ειδικεύεται στην εκμετάλλευση  premium ακινήτων στο κέντρο, στα βόρεια και νότια προάστια της πρωτεύουσας, ανέθεσε στην ταλαντούχα σχεδιάστρια χώρων, Μαρία Καρδάμη την ανακαίνιση της μεζονέτας με σκοπό την πώλησή της.

Το σπίτι που αγόρασε ο Στέφανος Κασσελάκης ανήκε στον πρώην υφυπουργό Γιάννη Βαληνάκη
H interior designer Μαρία Καρδάμη


Μετά την εκ βάθρων ανακαίνιση “εκτοξεύθηκε” και η τιμή του ακινήτου και από τα 770.000 ευρώ που διέθεσε η First Seat, η “super trendy” μεζονέτα έφτασε να πωλείται στη τιμή των 2,2 εκατ ευρώ, σύμφωνα με όσα αναφέρονται στην παρουσίαση της από την γνωστή interior designer. 

Το σπίτι που αγόρασε ο Στέφανος Κασσελάκης ανήκε στον πρώην υφυπουργό Γιάννη Βαληνάκη
Το σπίτι που αγόρασε ο Στέφανος Κασσελάκης ανήκε στον πρώην υφυπουργό Γιάννη Βαληνάκη
Το σπίτι που αγόρασε ο Στέφανος Κασσελάκης ανήκε στον πρώην υφυπουργό Γιάννη Βαληνάκη
Το σπίτι που αγόρασε ο Στέφανος Κασσελάκης ανήκε στον πρώην υφυπουργό Γιάννη Βαληνάκη
Το σπίτι που αγόρασε ο Στέφανος Κασσελάκης ανήκε στον πρώην υφυπουργό Γιάννη Βαληνάκη
Το σπίτι που αγόρασε ο Στέφανος Κασσελάκης ανήκε στον πρώην υφυπουργό Γιάννη Βαληνάκη


Όπως είναι σε θέση να γνωρίζει το protothema, παρουσιάστηκαν αρκετοί ενδιαφερόμενοι όμως η First Seat δεν συζητούσε να πέσει κάτω από το 1,9 εκατ ευρώ.
Ο πρόεδρος του ΣΥΡΙΖΑ, Στέφανος Κασσελάκης, διαπραγματεύτηκε την τιμή και έκλεισε τελικά τη συμφωνία στα 1,7 εκατ. Ευρώ.

Η τοποθεσία του ακινήτου μια ανάσα από την πλατεία Κολωνακίου, αλλά ταυτόχρονα και ήσυχο και ασφαλές σημείο, σε συνδυασμό με το μοντέρνο στυλ και τον εργονομικό σχεδιασμό του έπαιξαν καθοριστικό ρόλο στην επιλογή του συγκεκριμένου σπιτιού έναντι των άλλων επιλογών.

Σύμφωνα με πληροφορίες η διαδικασία της αγοραπωλησίας βρίσκεται πλέον σε τελικό στάδιο. Το ακίνητο έχει αποσυρθεί από τη μεσιτική αγορά και απομένει η υπογραφή του οριστικού συμβολαίου κάτι που αναμένεται να γίνει αυτή ή την ερχόμενη βδομάδα. Σύμφωνα με πληροφορίες, του protothema.gr οι Στέφανος Κασσελάκης και Τάιλερ Μακμπέθ έχουν ζητήσει από την interior designer επιπρόσθετες αλλαγές στη μεζονέτα, συγκεκριμένα στο χώρο της κουζίνας. Ευελπιστούν ότι θα είναι σε θέση να μπουν στο διαμέρισμα τον Ιούλιο, εφόσον βέβαια έχουν ολοκληρωθεί οι εργασίες ανακαίνισης, την εποπτεία της οποίας έχει αναλάβει ο Τάιλερ Μακμπέθ. Ο σύζυγος του Στέφανου Κασσελάκη έχει αναλάβει την επίβλεψη λόγω του επιβαρυμένου προγράμματος του προέδρου του ΣΥΡΙΖΑ.


Ειδήσεις σήμερα:

Θεσσαλία: Ο Daniel, οι αγρότες και το green deal - Το παράδειγμα του μήλου της Αγιάς

Θεσσαλονίκη: Μου είπε ότι δεν είναι σημερινό το κοντοσούβλι και με μαχαίρωσε, λέει ο μάγειρας από το ουζερί

Βρετανία: Από την περιουσία των £500.000 άφησε μόλις £50 στο καθένα από τα εγγόνια του επειδή τον παραμελούσαν
Ακολουθήστε το protothema.gr στο Google News και μάθετε πρώτοι όλες τις ειδήσεις

Δείτε όλες τις τελευταίες Ειδήσεις από την Ελλάδα και τον Κόσμο, τη στιγμή που συμβαίνουν, στο Protothema.gr

ΡΟΗ ΕΙΔΗΣΕΩΝ

Ειδήσεις Δημοφιλή Σχολιασμένα
δειτε ολες τις ειδησεις

ΤΑ ΠΙΟ ΔΗΜΟΦΙΛΗ

Best of Network

Δείτε Επίσης